Enghien

Maison du Renard

bâtiment classé (XVI°s)

maître de l’ouvrage : privé

expertise : analyse archéologique en vue d’une restitution

Catégorie de travaux effectués :
Type de travaux réalisés et associés :
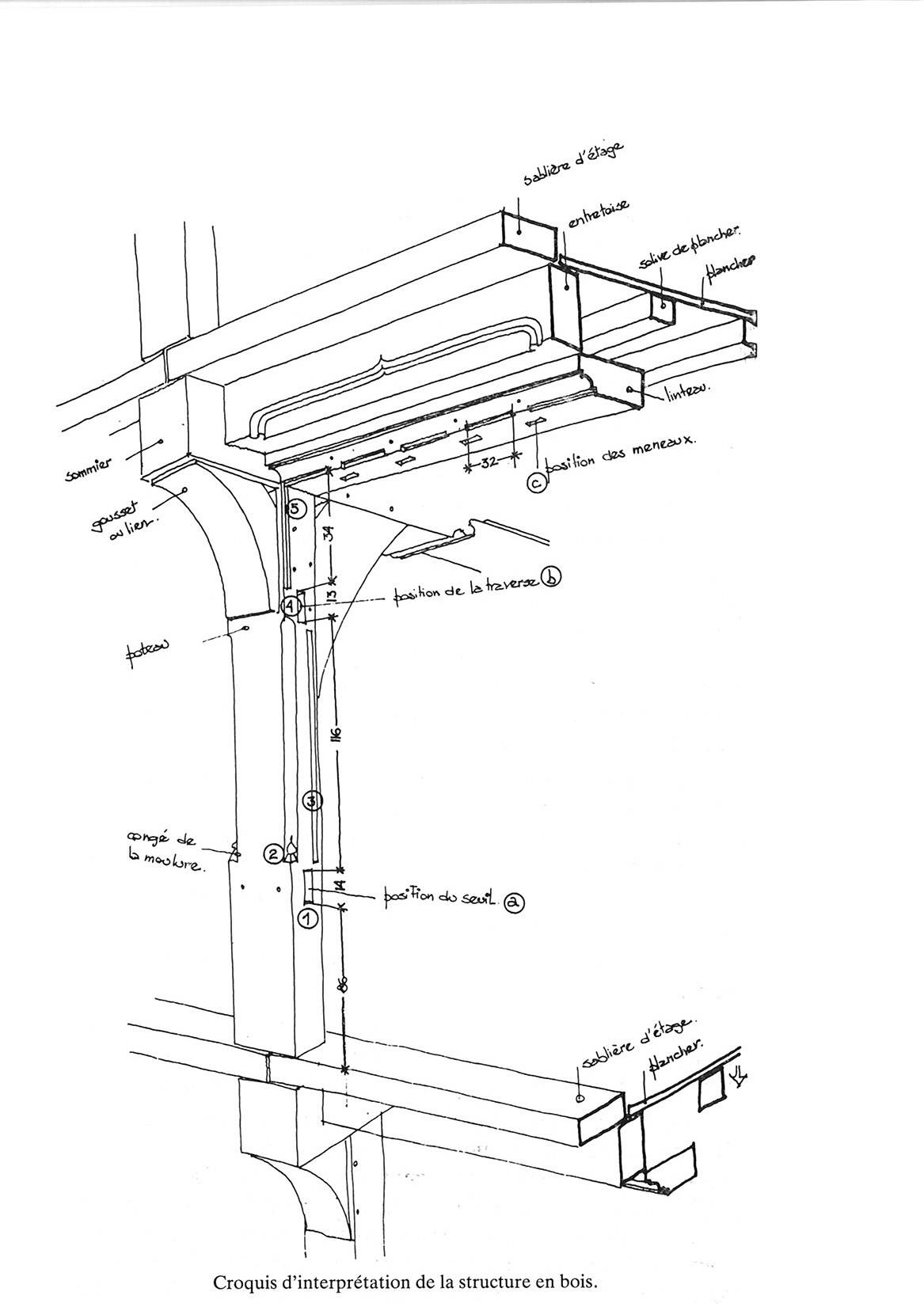
Croquis J-L Vanden Eynde
OLYMPUS DIGITAL CAMERA
OLYMPUS DIGITAL CAMERA