Aller au contenu
Accueil
Présentation
Projets
Restauration
Réhabilitation
Construction
Expertise
En cours
Contact
Accueil
Présentation
Projets
Restauration
Réhabilitation
Construction
Expertise
En cours
Contact
A la une
Facebook-square
Instagram
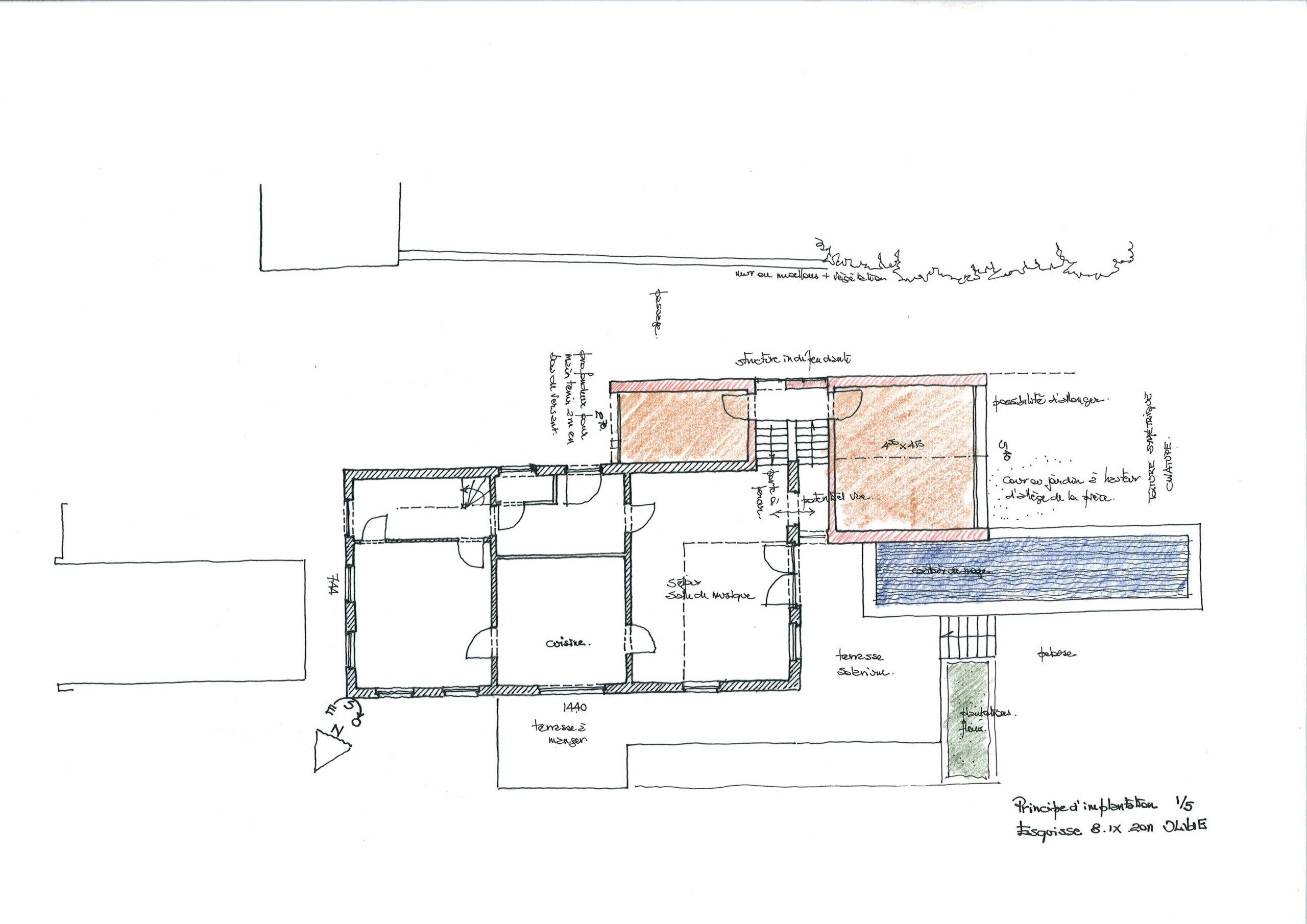
Rebecq
Extension d'une habitation
maître de l’ouvrage : privé
(projet)
Catégorie de travaux effectués :
Construction
,
Réhabilitation
Type de travaux réalisés et associés :
Aménagement intérieur
,
Aménagement paysager
,
Charpenterie
,
Chauffage / sanitaires
,
Couverture
,
Eclairage
,
Electricité
,
Enduit
,
Ferronnerie
,
Maçonnerie ancienne
,
Menuiserie
,
Structure métallique
,
Taille de pierre
,
Ventilation (HVAC)